+7 (903) 371-68-59
city_design@inbox.ru
Портфолио
Дизайн дома
Еланский район Волгоградской области
Для просторного дома был сделан дизайн в современном стиле, но с уютной атмосферой
Дизайн дома
Еланский район Волгоградской области
Для просторного дома был сделан дизайн в современном стиле, но с уютной атмосферой
Дизайн жилых комнат дома
Волгоград
Для интерьеров дома большой семьи был выбран стиль неоклассики. Он объединяет в себе сдержанность, роскошь, респектабельность классики с простотой, лаконичностью и функциональностью, которую ценит современный человек. В интерьере нашлось место как раритетным вещам, так и новым, дизайнерским предметам обстановки
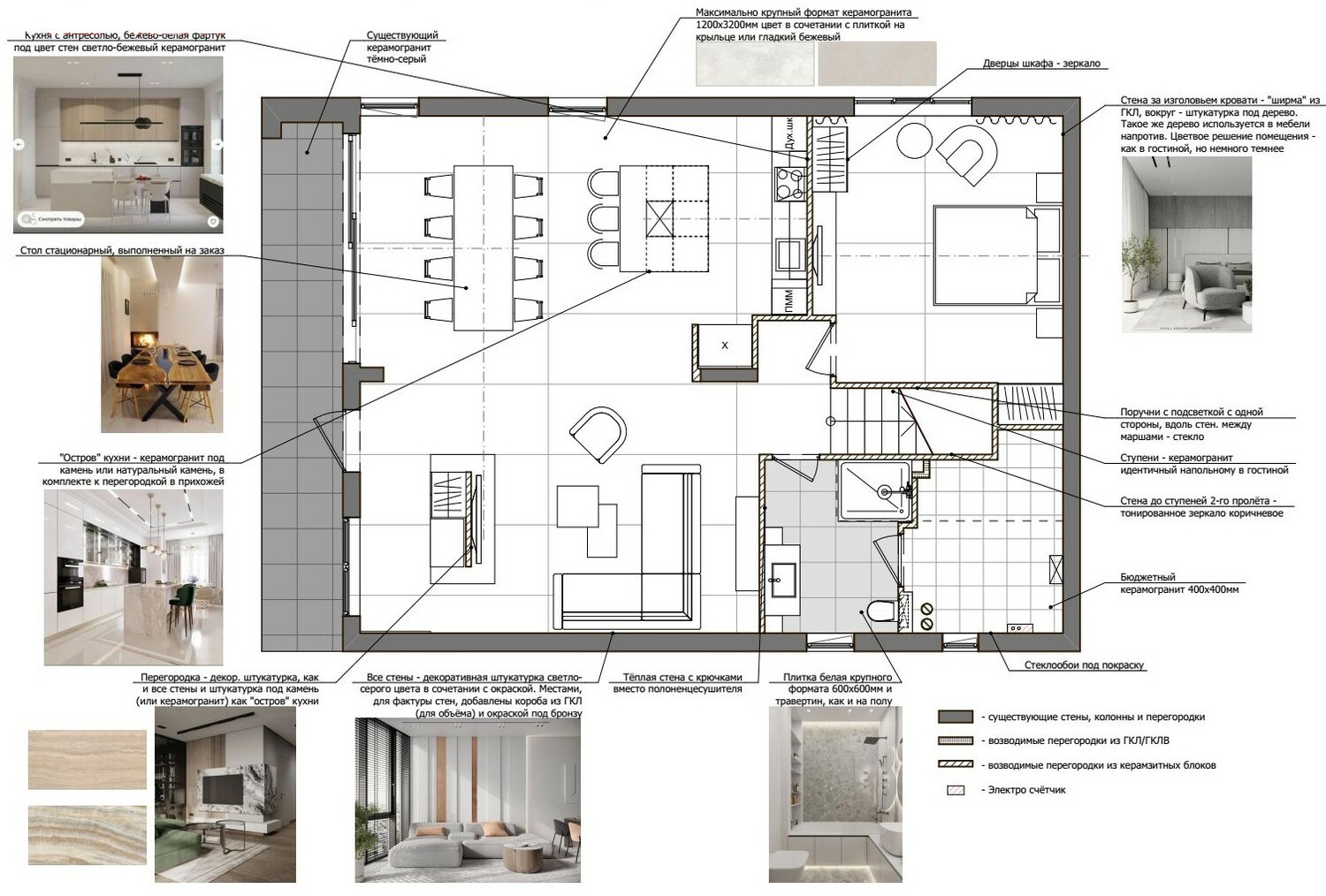
Дизайн трёхкомнатной квартиры
Волгоград ЖК "Машков"
Оформляя данную квартиру в современном стиле учитывалось, что конечный дизайн, всё же, должен получиться нарядным, интересным, тёплым, уютным, выдержанным в определённом направлении. Нужно было, чтобы в оформлении применялись яркие отделочные материалы, но, при этом, не было чрезмерного перенасыщения декоративными элементами
Дизайн четырёхкомнатной квартиры
Волгоград ЖК "Альбатрос"
Квартира в современном стиле в которой все помещения, в том числе детские комнаты, было решено сделать в сдержанных нейтральных тонах. Удалось спланировать хозяйственное помещение-постирочную, кладовую для детских велосипедов и две просторные гардеробные. Декоративный полупрозрачный витраж стал изюменкой квартиры
Дизайн двухэтажного дома с бассейном
Волгоградская область
Лаконичность — одно из достоинств интерьера частного дома выполненном в современном стиле. Это означает — минимум бесполезных предметов, максимум свободы, функциональности и комфорта
Дизайн трёхкомнатной квартиры
Москва
В оформлении интерьера в современном стиле сейчас нет строгих правил — возможно сочетать элементы хай-тека, сканди, лофта и других направлений. Но всё это должно проявляется лишь в деталях, гармонично и неброско дополняя основу. При этом планировка в таком жилье упорядочена, а каждая деталь имеет смысл.






































































































































































































































































































